Alongside drawings, schedules, and quantities, there’s another core part of construction documentation that quietly runs the show.
Yes! It’s construction specifications. Also, known as “specs” in tech jargon.
While construction drawings show what to build, specifications tell you what materials to use, how to install them, and what quality standards to follow. Together, they form a legally binding part of the construction contract.
This gives a clear and consistent understanding of the project’s requirements to all stakeholders.
Let’s dive in and understand everything about construction specifications, their types, elements, who prepares them and the common mistakes that you need to take care of while preparing them.
- What Are Construction Specifications?
- Key Components of Construction Specifications
- When are Construction Specifications Created?
- Who Writes Construction Specifications?
- Who Uses Construction Specifications?
- Why Construction Specifications are Important
- Types of Construction Specifications
- Common Mistakes in Construction Specification Writing
- Integrating Specifications with BIM and Digital Workflows
- Conclusion
What Are Construction Specifications?

Let’s understand this with an example.
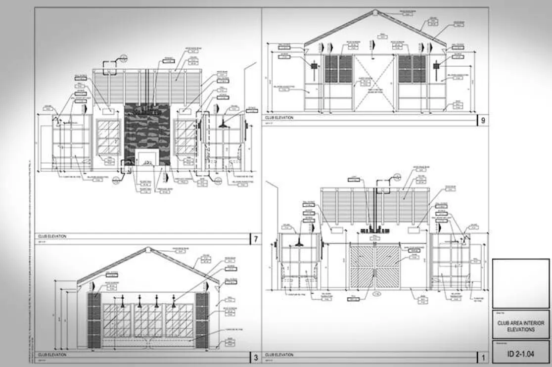
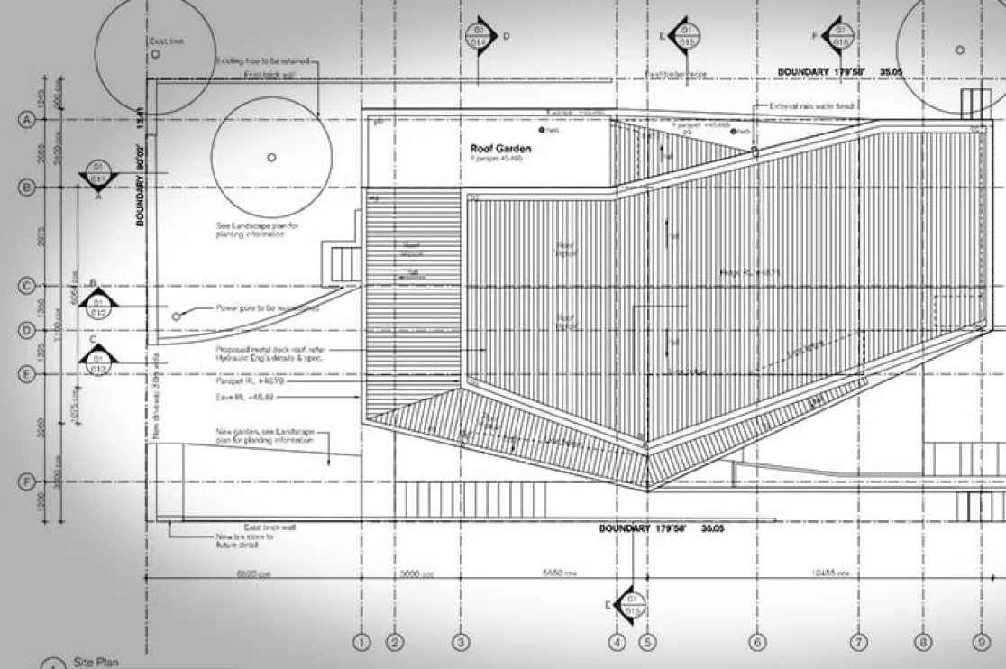
Your CAD drawings show where the door goes but the construction specification tells you it’s a 36-inch fire-rated steel door made in maple wood with some specific hinges and finishes.
See the difference?
Drawings show location and design. Construction specification tell you exactly what to buy and how to install what’s shown in them. More like detailed written instructions that complement your architectural and engineering drawings.
So, what do you mean by construction specifications? Construction specifications are legally binding documents that become part of your construction contract and construction documentation wherein you get all information about “how-to” construct that building.
Key Components of Construction Specifications
Here’s what goes inside construction specification documents:
General Requirements
Project scope, goals, roles, timelines, regulatory compliance, and submittal requirements. Basically, it’s like administrative backbone of your project.
Materials and Products
You get information on exact types, grades, brand names, units, and dimensions. Rather than saying just “concrete”, we say “4,000 PSI concrete per ASTM C94.”
Workmanship Standards
Performance criteria, craftsmanship requirements, and how to measure quality. What does “done right” actually looks like?
Execution Procedures
Step-by-step installation instructions, testing protocols, inspection processes, and verification methods. It’s field crew’s playbook.
Building Codes and Standards
Applicable national and local codes, safety requirements, and legal compliance. Non-negotiable stuff that keeps projects legal.
Quality Assurance
Monitoring guidelines, testing requirements, inspection procedures, and how to handle deficiencies when they pop up.
Safety and Environmental Protocols
Defines site safety rules, PPE requirements, and sustainability practices, including waste handling and environmental controls.
When are Construction Specifications Created?
Construction specifications are created during the design phase of any construction project. These are documented usually in parallel to engineering and architectural drawings, before beginning the construction.
With BIM technology, specifications are now developed hand-in-hand with the 3D model. This integration allows better coordination and real-time updates.
These building specifications also form the subset of construction documentation and gets finalized when project design is complete.
Who Writes Construction Specifications?
Construction specification writing is done by team of professionals that include architects, MEP engineers and other interior designers that have deep understanding of knowledge of building codes, materials, and construction methods.
Also, many construction documentation companies hire professional specification writers (known as specifiers) to create detailed documents. They use advanced construction specification writing software to create standardized formats like CSI MasterFormat to organize specifications consistently.
At BluEnt, our spec process brings architecture, structure, and MEP teams together early on. That way, if the architectural spec conflicts with the electrical spec, it’s caught long before construction begins.
Who Uses Construction Specifications?

Construction specifications are used by a wide range of professionals, including:
Architects and engineers who write them
Contractors and subcontractors who build according to them
Clients, vendors, and suppliers to ensure consistent expectations and material quality
Project managers use them to guide the project
Inspectors use them to verify final work meets the required standards
These technical specs apply across all construction sectors including commercial buildings, residential projects, industrial facilities, infrastructure, institutional buildings, and even large scale renovation work.
Why Construction Specifications are Important?

Specifications are a critical part of overall construction documentation. Here’re some of the reasons why they hold an important part of construction documentation –
Ensures all project stakeholders share the same understanding of requirements.
Improves quality control and compliance with codes and standards.
Reduces risk, rework, ambiguity, and disputes over project scope or acceptable materials.
Facilitates procurement, bidding, cost estimation, and scheduling.
Supports value engineering and innovation by allowing performance-based options
Provides legal protection in case of dispute
For construction documentation and 3D services companies, having robust, clear specifications enhance project quality, support digital workflows, facilitate compliance, and reduce disputes and errors.
Types of Construction Specifications
Primarily, there are three main types of construction specification.
Prescriptive Construction Specifications
Performance Construction Specifications
Proprietary Construction Specifications
This table gives you a glimpse of the three specs with a simple construction specifications example.
| Type | Description | Example |
|---|---|---|
| Prescriptive | Specifies exact materials, brands, and installation methods. Divided into general provisions, required products, and execution procedures. | “Use X-grade concrete, installed per Y method” |
| Performance | Defines the required outcome, letting the contractor choose materials/methods to meet specific performance criteria. | “Wall must have R-20 insulation value” |
| Proprietary | Calls for a specific manufacturer or product, sometimes for unique or high-performance needs. | “Use ABC Company’s fire-rated door system” |
Common Construction Specification Mistakes and Solutions

Avoid the below mentioned common mistakes by following the solutions. This will greatly improve the clarity, accuracy, and usability of construction specifications. Indeed, minimizing costly errors and delays in construction projects for sure.
Poor Coordination Between Drawings and Specifications
Mistake: Drawings and specs often show conflicting information, causing confusion and RFIs.
Solution: Implement cross-referencing processes and coordination spreadsheets to ensure alignment. Hold review meetings to verify coordination.
Ambiguous or Unclear Language
Mistake: Using vague terms like “high-quality” or “industry standard” leads to misinterpretation.
Solution: Use specific, measurable criteria. Have a third-party or someone unfamiliar review specs for clarity.
Copy-Pasting Without Editing
Mistake: Reusing master specs or manufacturer specs without customization causes irrelevant or missing requirements.
Solution: Critically edit specs to delete unrelated options and add project-specific info. Use a highlighting system for customization needs.
Ignoring Site and Regional Conditions
Mistake: Applying generic specs that don’t consider climate or site specifics leads to premature failures.
Solution: Research materials for similar environments and create regional supplements for specs (e.g., coastal vs. desert).
Using Outdated Master Specifications
Mistake: Using specs not updated with current codes and standards causes non-compliance and costly fixes.
Solution: Regularly update specs to reflect code changes, product updates, and industry standards.
Lack of Interdisciplinary Coordination
Mistake: Specs don’t align across architecture, mechanical, electrical, and plumbing, causing clashes and delays.
Solution: Hold interdisciplinary review meetings and create coordination matrices for alignment, especially on critical elements like fire safety.
Insufficient Detail in Execution Sections
Mistake: Specifications focus on materials but lack thorough installation instructions, leading to field issues.
Solution: Include detailed step-by-step execution procedures considering substrate prep, conditions, and quality checks. Get contractor input during design.
Unclear Rules for Substitutions and Alternates
Mistake: Vague substitution policies create confusion and delays.
Solution: Define clear criteria and processes for substitutions. Consider restricting substitutions on critical items and require detailed comparison requests.
Communication Breakdowns Between Office and Field
Mistake: Critical specification points get lost or misunderstood on site.
Solution: Highlight key specs in meetings and provide one-page summaries or field mockups for clarity.
Mis-Specifying Sustainable or Specialized Materials
Mistake: Incorrect or incomplete specs for sustainability features lead to failures or non-compliance.
Solution: Stay informed on sustainability standards and consult experts to properly specify materials.
Integrating Construction Specifications with BIM and Digital Workflows
Earlier construction specifications were written before floating the tender. But, today with technological evolution and BIM technology, things are changing.
By linking construction specifications directly to BIM elements, teams can track materials, performance data, and installation methods in real time. Any model change automatically highlights spec updates, reducing coordination errors.
Construction specifications work best when they’re tied to the project’s BIM Execution Plan (BEP). The BEP defines how information is structured, shared, and updated throughout the project lifecycle. Now this approach:
Minimizes coordination errors
Reduces RFIs
Improves collaboration across architecture, structure, and MEP teams
Streamlines procurement (linked data allows faster tracking of materials and approvals)
Recommended Reads:
Conclusion
Honestly speaking, construction specifications may not be the most exciting part of design documentation, but they’re the backbone of a successful project.
From reducing disputes, cutting down delays, and keeping everyone accountable, well-written specs ensure your design intent survives through construction. Exactly as planned.
At BluEnt, we coordinate construction specifications within our BIM and construction documentation workflows, ensuring that the written requirements align perfectly with architectural and engineering drawings.
This way we maintain accuracy, consistency, and seamless collaboration across every project stage.
If you’re looking to strengthen your construction documentation or streamline your BIM coordination process, our team is ready to help. Call Now.









From Blueprints to 3D Visuals: Building Construction Portfolio That Win Clients
What is Construction Document Management Software?
Foundation Plan Drawings: Their Importance and Role in Successful Construction Projects
What Do SD, DD & CD Stand for in Construction?