GFC drawings or ‘Good for Construction’ drawings form the cornerstone of any successful construction project. It is one of the most important parts of the construction documentation process. These are a subset of construction drawings that have been reviewed and finalized for use in the actual construction phase of the project. They form a crucial aspect of your construction management plan, even for renovation projects.
Let us understand these good for construction drawings in detail, their role in the construction industry, and why they are necessary.
Table of Contents:
What are Good for Construction Drawings?
GFC drawings (good for construction drawings) are construction drawings and specifications for a designated project. They must be comprehensive, detailed, and accurately represent the final design and specifications. Typically used by contractors and builders as a reference for construction, these are approved by local governing bodies and clients.
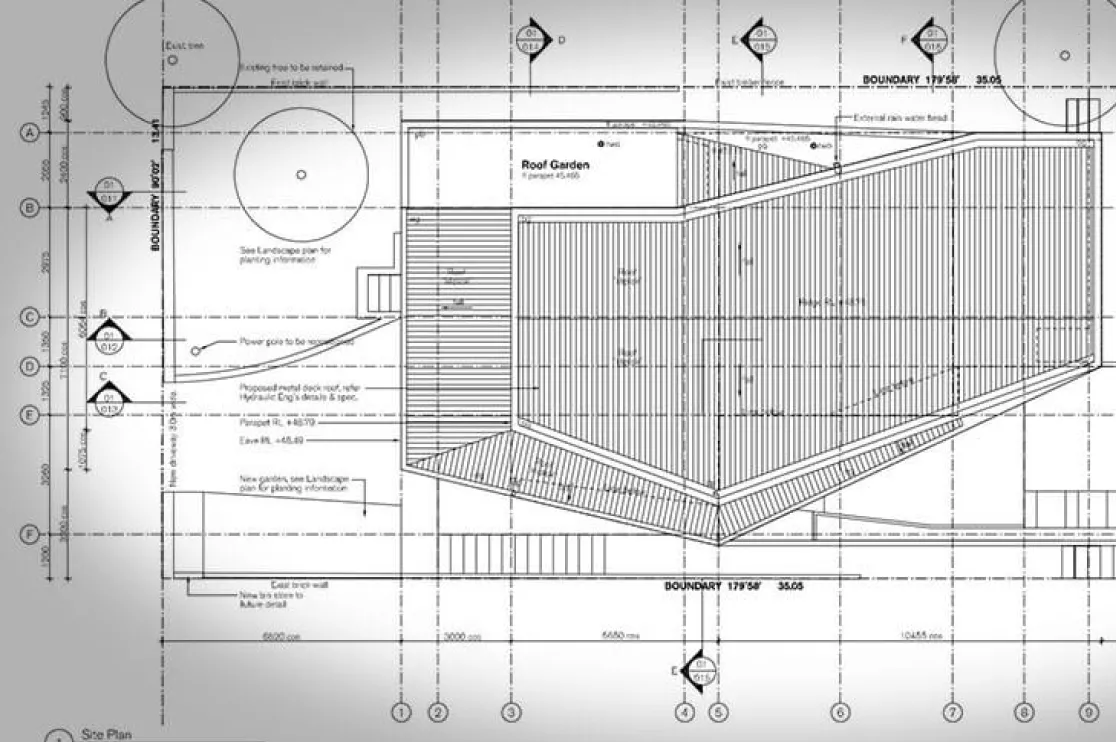
They can be considered a visual map used during the various stages of construction and incorporate detailed technical and architectural drawings of a structure.
GFC drawings include all the necessary details, dimensions, and specifications required for the construction project. The details include things such as structural drawings, electrical drawings, staircase drawings, mechanical drawings, plumbing drawings, and other architectural construction documents.
GFC drawings are considered a vital reference for construction and should reflect any changes or updates made during the design and planning stages. They ensure that the construction process goes smoothly and that the final structure aligns with the intended design.
Role of GFC drawings in construction
Not a single brick is laid before the GFC drawings are filed. Good for construction drawings define every minute detail for each step during construction. This ensures that construction is executed precisely.
Since it is approved by every stakeholder involved in the construction project, it minimizes risks and helps avoid disputes during the building process. The role of GFC drawings in the construction process is a crucial one. The role of GFC drawings in construction includes:
1. Construction Guidance
GFC drawings are the primary source of information for contractors and teams working on the project. They provide the guidance needed to build the structure according to the approved design.
2. Accurate & Detailed Reference
GFC drawings contain accurate and detailed information about architectural, structural, and electrical elements, including dimensions, materials, and specifications.
3. Facilitates Communication
GFC Drawings facilitate clear communication among various stakeholders, including architects, engineers, and contractors. They help prevent misunderstandings and errors during construction.
4. Risk Management
GFC drawings highlight potential design or site issues before construction starts. Early detection reduces delays, rework, and budget overruns. Thus, improving project timelines and overall build quality.
5. Approval and Compliance
GFC design in construction is reviewed and approved to meet building codes, safety standards, and regulatory requirements. This speeds up permitting while avoiding legal roadblocks.
You can develop the drawings in-house if you have the capacity, or you can reach out to our drafting services.
8 Key Benefits of GFC Drawings in Construction

1. Managing challenges with ease
Bringing a building to life is a monumental task. GFC drawings give a detailed arrangement of the entire structure. Hence, this enables the construction team to manage construction challenges easily and efficiently.
GFC drawings in Revit help preserve the original design intent, ensuring the final build aligns exactly with what was planned.
2. A methodical and logical quotation process
Good for construction drawings are a final plan created after numerous modifications and changes.
These construction drawings allow the team to quote fairly – not over-priced or underpriced. Furthermore, they empower the clients to see the bigger picture of the design, so they know where their money is being invested.
3. The making of a well-connected team
GFC drawings ensure that everyone involved in the project is on the same page. They are shared amongst and accessible to every stakeholder.
Therefore, the team can work with a standard set of construction drawings, enabling them to stay connected and informed at every stage of the process.
This coordinated approach also integrates architectural, structural, and MEP details into one set, reducing the risk of clashes between disciplines.
4. Time is money
GFC drawings allow builders and contractors to work in a more methodical and systematic way. It reduces errors and modifications, which increases the time of the project. Hence, it also reduces the cost.
Coordinated and consistent construction drawings also save time during approvals, helping projects move through regulatory checks faster.
5. Safety and Quality Assurance
G.F.C. drawings promote construction site safety by providing clear, accurate guidelines for every stage of work. They support strict quality control in construction, ensuring materials and workmanship meet set standards.
6. Faster Decision-Making
With Good for Construction (GFC) drawings documented and approved, construction teams can act quickly without waiting for clarifications.
This reduces downtime on the building site and keeps the construction project timeline on track. Site issues can also be resolved immediately before they get escalated.
7. Client Transparency
GFC drawings give clients a visual and technical understanding of the building project before construction begins, improving trust.
Stakeholders can clearly see how their requirements are being met in the construction plans. This clarity also reduces confusion and reassures them about budget and timelines.
8. Reduced Scope Creep
Clear GFC drawings make it harder for unplanned changes to slip in unnoticed during the construction process. Every modification must be reviewed against the approved construction plans. This protects budgets, timelines, and overall design integrity for the project.
Recommended Reading:
Elements of Good For Construction Drawings

Here’s the order of GFC drawings and what essential elements they include. Ideally, this is the pattern followed but it may vary slightly depending on the project scope and requirements.
Cover Sheet
Project title, drawing number, drawing list, revision history, and general notes.
General Notes and Legends
Symbols, abbreviations, drawing conventions and construction notes.
Overall site layout, building location, access roads, parking, landscaping, and utility connections.
Architectural GFC Drawings
Floor Plans: Layouts of each floor.
Elevations: With materials, finishes, and key features.
Sections: Internal vertical and horizontal cut views.
Reflected Ceiling Plans: Lighting, HVAC diffusers, fire protection devices.
Details: Wall sections, windows, doors, stairs, finishes.
Structural GFC Drawings
Foundation Plan: Layout and dimensions of foundations, footings, slabs.
Structural Plans: Drawings of beams, columns, slabs with sizes and reinforcement details.
Sections and Details: Connection and joint details for structural elements.
Mechanical: HVAC plans, ductwork, and equipment locations.
Electrical: Power distribution, lighting layouts, and panel schedules.
Plumbing: Sanitary, water supply, and drainage systems.
Fire Protection: Sprinklers, alarms, and suppression systems.
Civil GFC Drawings (if applicable)
Site Development: Roads, parking, landscaping, drainage.
Utility Plans: Water supply, sewer, stormwater, and external electrical.
Landscape GFC Drawings (if applicable)
Planting Plans: Types, quantities, and locations of vegetation.
Hardscape Plans: Pavements, retaining walls, paths, patios.
Irrigation Plans: Layout and specifications for irrigation systems.
Interior Design Drawings
Floor Plans: Internal layouts for each floor.
Flooring Layouts: Materials, patterns, and finishes.
Interior Elevations: Wall finishes and vertical elements.
Interior Sections: Detailed interior cut views.
Door and Window Schedules: Sizes, materials, hardware details.
False Ceiling Plans: Layouts, materials, and patterns.
Layouts for fixed and loose furniture, cabinetry, and joinery details.
Fixtures and Fittings Schedules
Specifications and quantities for lighting, plumbing fixtures, hardware, etc.
Operation and Maintenance Manuals (if included)
Guides for installed equipment, systems, and materials.
Recommended Reading:
Issued for Construction (IFC) Drawings and Approved for Construction (AFC) Drawings
GFC drawings are not to be confused with IFC (issued for construction) and AFC (approved for construction) drawings. While GFC drawings can be thought of as drawings of the ‘good-to-go’ stage, IFC and AFC drawings are more final versions. While the Good for Construction drawings stage means that the drawings are suitable for actual construction, IFC drawings relate to the ‘implementation’ drawing of the project.
Similarly, AFC drawings refer to the final set of drawings that have been approved by clients, architects, engineers, and regulatory authorities.
IFC drawings are issued for review by clients or their representatives to the contractor. They outline finer details about design components than do construction documents.
Similarly, AFC drawings are drawings or documents that have been approved by both external and internal authorities, including the client or client representative. Construction can be carried out using marked or stamped AFC drawings.
Recommended Reading:
Conclusion
Today, GFC drawings are shared with everyone, including workers, digitally. Companies even use apps created for this purpose.
If you are one of the 57% of contractors having trouble finding skilled workers for your construction project, you are in the right place. BluEntCAD creates accurate and detailed construction drawings. They ensure that even the most complex projects are executed with ease.
We serve top homebuilders, architectural companies, engineering companies, custom home design companies, and real estate development companies.
Ready to make your project a success with construction documentation services? Contact us now!
Frequently Asked Questions
What is GFC drawings full form?The full form of GFC drawings in construction is Good For Construction. These drawings are the approved and final set of detailed architectural, MEP and structural drawings that are used by contractors to start the on-site work.
What is GFC meaning in construction in simple words?GFC drawing means Good For Construction drawings that contain all the details and specifications required by the contractor to start the construction work. Think of them as final approved blueprints for on-site construction.
What software are used to create GFC drawings for construction?GFC designs or GFC layouts are made in various CAD and BIM software. The popular ones include Revit, AutoCAD, and SketchUp.
Can you give a GFC drawing example?A floor plan in Revit or AutoCAD that shows walls, doors, windows, electrical points, plumbing lines, and all measurements clearly marked Good For Construction.
What are GFC drawings in electrical engineering?GFC drawings show all electrical work on a project. They can include wiring layouts, lighting positions, power distribution and safety systems.
What types of GFC drawings are there?GFC drawings set includes architectural GFC drawings, structural GFC drawings, MEPF GFC drawings for mechanical, electrical, plumbing and fire protection (MEPF), civil GFC drawings, interior layouts, schedules for furniture or fixtures and other important drawings of construction documentation that are approved by stakeholders.
Why are GFC drawings with dimensions important?GFC designs with dimensions make it clear exactly where and how things should be built. Certainly, preventing mistakes and saving time on site.
Which projects benefit more from GFC drawings?GFC drawings for constructions are extensively used in commercial, industrial and infrastructure projects. It’s all the industries where end to end BIM integration is applied.
What is difference between GFC and shop drawings?While GFC and shop drawings both are essential for construction but serve different intents. In simple words, GFC serve as a blueprint of the project and shop drawings serve as detailed instruction manuals for the building’s specific parts. GFC drawings are made for general contractors and construction teams, while shop drawings are for fabricators, suppliers, and contractors.









From Blueprints to 3D Visuals: Building Construction Portfolio That Win Clients
What Are Construction Specifications? Complete Guide
What is Construction Document Management Software?
Foundation Plan Drawings: Their Importance and Role in Successful Construction Projects
Nice blog
Thank you :)
I m impressed with this update.
Thx & regards
Thanks for liking our post. Keep reading!
It was interesting to learn about how there is a lot of accuracy with all of their dimensions and measurements and have a lot of detailed information available. I think in general it could be really helpful for a builder to have access to something like this on the building that they are working on so that they can be more accurate. It might be able to help them be more structurally sound so that it is very strong and will last for a very long time without having problems.
Thanks Jenna. Keep Reading
very well explained.. further i would like to know the difference between working drawing and GFCs
Hi Mohd! We’re happy you enjoyed the blog post. Absolutely, we’ll make time to write about working drawings and GFCs in the future. If you would like us to cover any other topics, please feel free to write to us at sales@bluentcad.com